Menu
актуална
af06d01a9b895faaa8df62de6281a2e5
9a49d76c76aa34fd620c8fa1f547b7b5
e17dc9457284f729136e1eb5993da9ea

Просторен инвестиционен терен в живописния район на Опртал

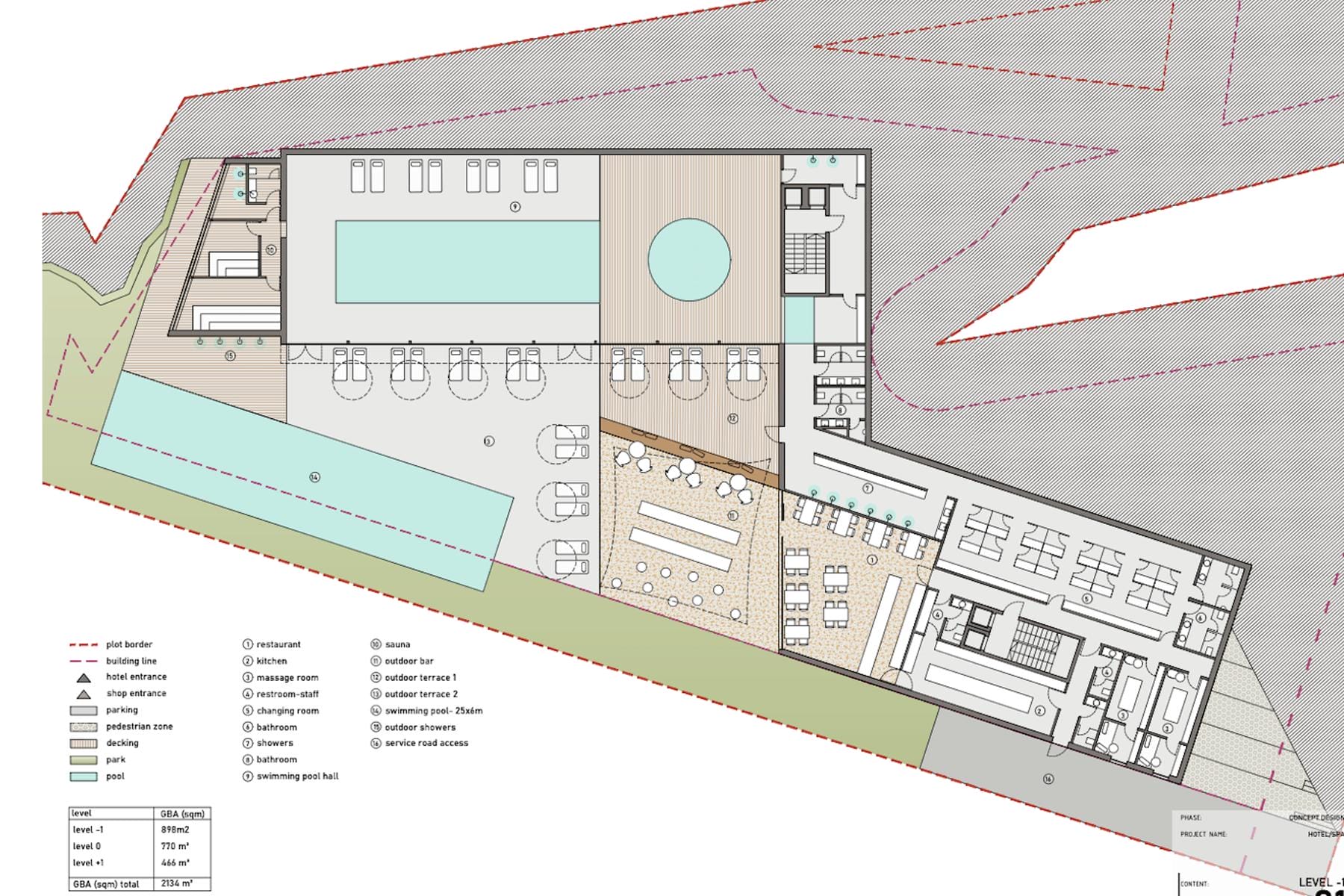
Представеният строителен терен с площ над 36 хиляди квадратни метра представлява изключителна инвестиционна възможност в един от най-красивите региони на Хърватия. Парцелът се намира в зона за застрояване, което позволява бърз старт на строителните дейности. За имота са разработени концептуални проекти, които предвиждат възможност за изграждане на луксозен жилищен комплекс или хотел с висок стандарт.

В радиус от няколко крачки се намира комплексна инфраструктура, което значително повишава атрактивността на локацията за търговски или частни инвестиции. Районът е известен с очарователните си пейзажи и благоприятния климат, което допълнително увеличава потенциала за развитие на това място. Това предложение е насочено към инвеститори, които търсят пространство, подходящо както за удобни резиденции, така и за туристически проекти с висок стандарт.

Този просторен парцел предоставя широки възможности за адаптация и облагородяване според инвестиционната визия. Благодарение на добрата връзка с околните населени места и близостта до туристически атракции, това е локация с голям потенциал за възвръщаемост на инвестицията.

Детайли за имота

Представеният строителен терен се отличава с голяма площ и удобно предназначение за застрояване. Парцелът вече е разделен на по-малки парцели, което улеснява управлението на инвестиционния проект. Достъпът до пълна инфраструктура в непосредствена близост значително улеснява подготовката на терена за строеж.

  • Тип имот: парцел
  • Площ на терена: 36 824 м²
  • Локация: Опртал, Хърватия
  • Зона за застрояване: да
  • Разделяне на парцела: парцел разделен
  • Инфраструктура: пълен достъп в непосредствена близост

В концептуалните проекти влиза луксозен жилищен комплекс, състоящ се от 22 вили с частни басейни, 54 редови къщи оборудвани с басейни и 24 апартамента. Алтернативно е предложено изграждането на хотел с три етажа и обща площ над 2 хиляди квадратни метра. В обекта могат да бъдат разположени лоби, рецепция, както и търговски и гастрономически обекти.

Отличната локация на парцела в близост до природата, а същевременно в урбанизирана зона, отваря широки инвестиционни възможности. Теренът е формално пригоден за реализиране на многоетапни проекти, което позволява гъвкаво планиране и разширяване.

Разположението на парцела осигурява удобен достъп до най-важните транспортни маршрути и обслужващи центрове в региона. Това е идеалното място за инвеститори, търсещи уникални и големи терени за комплексни жилищни и туристически инвестиции.

Локация и предимства на инвестицията

Опртал се намира в северозападната част на Хърватия, която е част от региона Истрия. Това очарователно градче съчетава богата история, живописни пейзажи и достъп до множество природни забележителности. Тишината и спокойствието в района благоприятстват развитието на висококласни рекреационни и инвестиционни имоти.

Регионът е известен със своята изключителна културна и природна разнообразност, което го прави привлекателен както за туристи, така и за хора, търсещи постоянно място за живеене. Опрталj се отличава с уютна атмосфера, като същевременно предлага лесен достъп до по-големите градове и туристическия център на Истрия.

  1. Живописни пейзажи – маслинови горички и лозя, обграждащи населеното място, създават неповторим климат.
  2. Отлична инфраструктура – близост до основните пътни артерии и обслужваща инфраструктура.
  3. Туристически потенциал – нарастващият туристически поток осигурява стабилен интерес към места за настаняване и жилища.
  4. Богата история и култура – множество забележителности и местни културни събития обогатяват предлагането в региона.
  5. Спокойна околност – идеална за отдих и почивка далеч от градския шум.

Устойчивото развитие на региона и нарастващата му популярност правят инвестицията в това място стабилна. Следващите туристически сезони потвърждават интереса на инвеститорите към недвижими имоти с повишен стандарт в Опрталj. Локацията позволява създаването на проекти с уникален характер, които могат да удовлетворят изискванията на най-взискателните клиенти.

Естествената среда и внимателно запазената местна традиция благоприятстват стойността на инвестицията. Провереният достъп до комуникации и пътна инфраструктура представлява допълнително предимство при планирането на разширения.

Закупуване на недвижим имот в Опрталj, Хърватия

Завършването на покупката на недвижим имот в този район изисква прецизен подход и опит на местния пазар. Използването на професионална подкрепа може значително да улесни процеса, осигурявайки сигурност при сделката и оптимални инвестиционни условия. Всеобхватната помощ позволява безпроблемно изпълнение на формалностите и преговорите.

Агенция за недвижими имоти GoESTE предлага комплексно обслужване, което включва консултации, подготовка на необходимите документи и подкрепа през целия процес на покупка. Благодарение на индивидуалния подход към клиента и широкия спектър от услуги, процесът по придобиване на имот протича гладко и без стрес. Това предложение е отлична възможност за инвеститори, заинтересовани от региона Истрия и желаещи да се възползват от наличните възможности за развитие.

Повече

Парцел 36824 м2 в Опрталj, Хърватия – GST817186

Копирай линка на офертата
актуална
Код на офертата: GST817186
Цена: 1 841 200 EUR
Тип на сделката: продажба
Площ на парцела: 36 824 m2
Град: Oprtalj
Тип недвижим имот: Парцел
Сподели оферта

Консултант по офертата

Агент по недвижими имоти

Agencja Nieruchomości GoESTE

Свържи се

Ако имаш въпроси относно офертата или се нуждаеш от друга, с удоволствие ще отговорим.
Пиши ни или се свържи с нас по телефон.

Продаж на недвижими имоти в Хърватия

Хърватия е страна, разположена на границата между Централна и Южна Европа. Географски Хърватия се дели на сухоземна част, където се намира столицата Загреб, и крайбрежна част с много известни туристически градове като: Сплит, Задар, Дубровник, Риека. Що се отнася до недвижимите имоти в Хърватия, най-голям интерес сред инвеститорите предизвикват тези имоти за продажба, разположени в крайбрежната част на страната. Трябва да се има предвид, че освен сухоземната част, Хърватия разполага и с огромен брой острови, от които няколко десетки са обитавани. Благодарение на това общата дължина на морската ивица надвишава 5000 км.

Недвижими имоти в Хърватия с туристически характер

Хърватия се радва на голяма популярност сред туристи практически от цяла Европа. Много голяма част от приноса към хърватския БВП идва именно от туристическите услуги. Поради тази причина голяма част от инвеститорите закупуват недвижими имоти в Хърватия с цел туристическо отдаване под наем. Най-популярни за тази цел са двустайни или тристайни апартаменти в близост до морето.

Архитектурен стил на недвижимите имоти в Хърватия

Недвижимите имоти в Хърватия имат свой собствен стил и преди всичко чар. В Хърватия могат да се срещнат както много стари части на градове, датиращи още от Средновековието, така и типично модернистични съвременни сгради. Последните обаче са значително по-малко. Преди време голяма популярност имаха старите каменни къщи, често буквално изоставени. Камъкът е много видим в хърватската архитектура. Къщите в Хърватия притежават свой стил, който много интересно се съчетава с околната природа и е доста типичен за Южна Европа. В непосредствената близост до домовете идеално се вписват домашните маслинови дървета, смокини и широко разпространената лоза.

На какво да обърнем внимание при покупка на недвижими имоти в Хърватия

Подобно на други страни, още преди покупката трябва да определим предназначението на нашия имот. Недвижимите имоти в Хърватия, закупени с туристическа цел, за да печелят ефективно, трябва да отговарят на малко по-различни изисквания от тези, купени за задоволяване на лични нужди. Когато купуваме имот за себе си, често сме готови да направим малки жертви и компромиси в полза на по-ниска покупна цена. При такъв имот най-важното е да се чувстваме добре. В този случай дори 20-минутното разстояние до морето не трябва да бъде голяма пречка за нас. В края на краищата след първоначалното наситено лятно море не е необходимо да сме там всеки ден.

Имоти в Хърватия, предназначени за доходен наем, за да печелят сами за себе си, трябва да отговарят на очакванията на туристите, които ще пребивават в тях за ограничен период от време. Точно този ограничен период прави така, че очакванията към имота, който туристът избере, трябва да покриват възможно най-много изисквания. Много важно е близостта до морето и удобствата за отдих. Много голямо предимство е разбира се гледката към Адриатика от прозорците на нашия апартамент или къща. Ако изберем къща, много силно предимство е басейнът, който в горещите дни е много ефективна форма на релакс. Туристите са готови да платят повече именно за тези предимства. Затова определено по-голям интерес и съответно по-висока възвръщаемост генерират тези апартаменти и жилища, които гарантират удобни условия за пристигащите. Туристите, планиращи почивка с бюджетен характер, обикновено не избират апартаменти и жилища, а предпочитат много популярните в Хърватия къмпинги с модулни къщички и места за кемпери.

В кои райони да купим апартамент в Хърватия?

Отговаряйки на този въпрос, също трябва да решим какво ще бъде крайното предназначение на имота. Ако планираме да закупим апартамент или къща в Хърватия за собствено ползване, имаме пълна свобода и трябва да се ръководим от собствения си вкус и основните очаквания към мечтания имот.
Ако обаче нашият имот трябва преди всичко да изпълнява доходни функции, трябва да се фокусираме върху такива райони, които са или в бъдеще ще бъдат популярни сред туристите. Нека не забравяме също, че малко по-различни са очакванията на семейство 2+2 и други – на група млади приятели. Несъмнено предимство на имотите в Хърватия с туристическо предназначение е комуникацията. Близостта до летища тук е безспорно предимство. За щастие в Хърватия има доста летища в крайморски градове, които се обслужват и от нискотарифни авиокомпании. Докато най-популярната туристическа дестинация, но и най-скъпата по отношение на цените на имотите е Дубровник, то при избор на имоти в обхвата на летищата в Задар и Сплит все още може да се закупят апартаменти на сравнително достъпна цена.

Адриатическо море в Хърватия

Хърватия разполага с дълга морска ивица и голямата част от инвестициите в недвижими имоти са съсредоточени именно в този район. Адриатическото море в този регион има много красиви нюанси, понякога буквално като от картичка. Това безспорно е огромно туристическо предимство. Важно е обаче да се подчертае, че в Хърватия има много малко типични пясъчни плажове. Значително по-голяма част от крайбрежната ивица са каменисти брегове, а около градовете дори бетонни. Разбира се, на тези места може да се къпе човек, но често се препоръчва използването на специални защитни обувки. Поради тази причина районите с пясъчни плажове както по сушата, така и на островите, са изключително популярни и търсени. Много очарователни могат да бъдат и камерните заливчета, които придават необикновен чар. Някои от тях служат и за акостиране на яхти. Релефът на много места в Хърватия е изключително живописен. От красивото море практически директно се издигат живописни хълмове, а често и отчетливи планини. Такъв релеф не само радва окото, но дава възможност на недвижимите имоти, построени на хълмовете в 10-та крайбрежна линия, да гарантират красиви панорами към Адриатическо море.

Недвижими имоти в Хърватия

Цените на недвижимите имоти за продажба в Хърватия се посочват подобно на много други европейски страни в евро, въпреки че Хърватия има собствена валута куна. При решението за покупка на недвижим имот в Хърватия е много важно да знаете точно какво търсите. Ако е възможно, добре е да стесните търсенето по местоположение и цена. Така може значително повече време да отделите за анализ на тези имоти, които потенциално отговарят на вашите очаквания. Най-добре основният подбор да бъде направен още по време на престоя ви в Полша. Когато решите за избран имот, трябва да направите платена резервация, за да сте сигурни, че той няма да бъде показван на други заинтересовани лица. Недвижимите имоти в Хърватия продължават да се радват на голям интерес сред жителите почти на цяла Европа и дори ако няма типичен икономически бум, такова количество заинтересовани особено през сезона води до това най-популярните имоти бързо да намерят нов купувач.

Повече

Оцени

Само влезли в профила си потребители могат да оценяват

Средна оценка 5 / 5. Брой оценки 21

Няма оценки. Бъди първият, който ще оцени тази публикация.

Провери офертите

  • Dom w Sukošan z 5 mieszkaniami i przestrzenią biznesową H Sukosan

    Дом в Сукошан с 5 апартамента и бизнес пространство

    Sukošan,
    Хърватия
    продадена
    Къща в Сукосан с пет апартамента и бизнес площ За продажба се предлага просторна къща с 5 апартамента и допълнителна площ, предназначена за търговска дейност. Обектът...
  • Apartament na 2 piętrze, 150m od morza, nowy budynek, Privlaka A A Privlaka Apartmani Emporia Nekretnine

    Апартамент на 2-ри етаж, на 150 м от морето, нова сграда, Привлака

    Privlaka,
    Хърватия
    продадена
    Апартамент на 2-ри етаж в Привлака на 150 м от морето Предлаганият апартамент, разположен на 2-ри етаж в модерен блок в живописното селище Привлака, представлява идеално...
  • Dom z kamienia z podwórzem 2152 m2, widok na morze, 100 m od morza, Ugljan H Ugljan Stone House Emporia Real Estate

    Къща от камък с двор 2152 м2, изглед към морето, на 100 м от морето, Углян

    Preko,
    Хърватия
    продадена
    Каменна къща с двор и морска панорама в Углян Предлаганата оферта се отнася за изключителна каменна къща, разположена на живописния остров Углян, в местността Поляна. Този...
  • W pełni umeblowany apartament z widokiem na morze - 3 piętro 46,55 m2, Starigrad A Emporia Nekretnine Starigrad

    Напълно обзаведен апартамент с морска гледка – 3-ти етаж 46,55 м2, Стариград

    Starigrad,
    Хърватия
    продадена
    Напълно обзаведен апартамент с морска гледка в Стариград За продажба се предлага изключителен апартамент с площ от 46,55 м², разположен на третия етаж на жилищна сграда,...
  • Luksusowa willa z basenem, nowy budynek, Zaton H Zaton Villa Pool Sea

    Луксозна вила с басейн, нова сграда, Затон

    Nin,
    Хърватия
    продадена
    Луксозна вила с басейн в живописния Затон В офертата е налична изключителна луксозна вила с басейн в крайморския град Затон. Тази модерна сграда с обща площ...
  • Nieruchomość biznesowa w doskonałej lokalizacji w Smiljevac, Zadar B Zadar Emporia

    Бизнес имот в отлично местоположение в Смильевац, Задар

    Zadar,
    Хърватия
    продадена
    Бизнес имот в сърцето на Смильевац, Задар За продажба е изключителен бизнес имот, разположен на отлично място в Смильевац, близо до Задар. Предлаганото помещение, разположено на...
  • Apartament w nowym budynku, Borik, Zadar F F Borik Zadar Emporia Nekretnine Stanovi

    Апартамент в нова сграда, Борик, Задар

    Zadar,
    Хърватия
    продадена
    Модерен апартамент за продажба в очарователния район на Задар За продажба е новопостроен апартамент, разположен в живописния квартал Борик в Задар. Идеален за хора, търсещи комфортно...
  • Działka budowlana - 1880 m2, Vinjerac Izrezak

    Парцел за строителство – 1880 м2, Винерац

    Posedarje,
    Хърватия
    продадена
    Очарователен парцел за строителство във Винерац с площ 1880 м2 Предложение за покупка на атрактивен строителен парцел в живописното селище Винерац. Площта от 1880 м2 отваря...
  • Dom z dużym ogrodem i widokiem na morze, Novigrad H Emporia Nekretnine Zadar Novigrad

    Къща с голяма градина и изглед към морето, Новиград

    Novigrad,
    Хърватия
    продадена
    Къща с голяма градина и изглед към морето в Новиград Предлаганата оферта се отнася за изключителна къща, разположена в живописния Новиград, характеризираща се с впечатляваща морска...
  • Dwa w pełni umeblowane domy z pięknym widokiem na morze, Novigrad H Emporia Neketnine Zadar Novigrad

    Два напълно обзаведени къщи с красива морска гледка, Новиград

    Novigrad,
    Хърватия
    продадена
    Два напълно обзаведени къщи с прекрасна морска гледка в Новиград В Новиград ви очаква изключителна оферта, която съчетава комфорт с впечатляваща морска панорама. Предлагат се два...
  • Dwupoziomowy apartament w miejscowości Belafuža, Zadar F Zadar Belafuza Stan

    Двунивоен апартамент в град Белафужа, Задар

    Zadar,
    Хърватия
    продадена
    Елегантен апартамент в живописния квартал Белафужа Изключителна възможност за закупуване на двуетажен апартамент в атрактивна локация в Задар, Белафужа. Просторен и комфортен, заемащ втория етаж и...
  • Apartament 25 m od morza, całkowicie odnowiony, Turanj, 1 piętro A Turanj

    Апартамент на 25 м от морето, напълно обновен, Туранж, 1-ви етаж

    Sveti Filip i Jakov,
    Хърватия
    продадена
    Модерен апартамент на 25 м от морето в живописния Туранж За продажба отличен апартамент, разположен в Туранж, само на 25 метра от очарователния плаж. Обектът, който...

Обади се

Пиши

Обратно

Начало