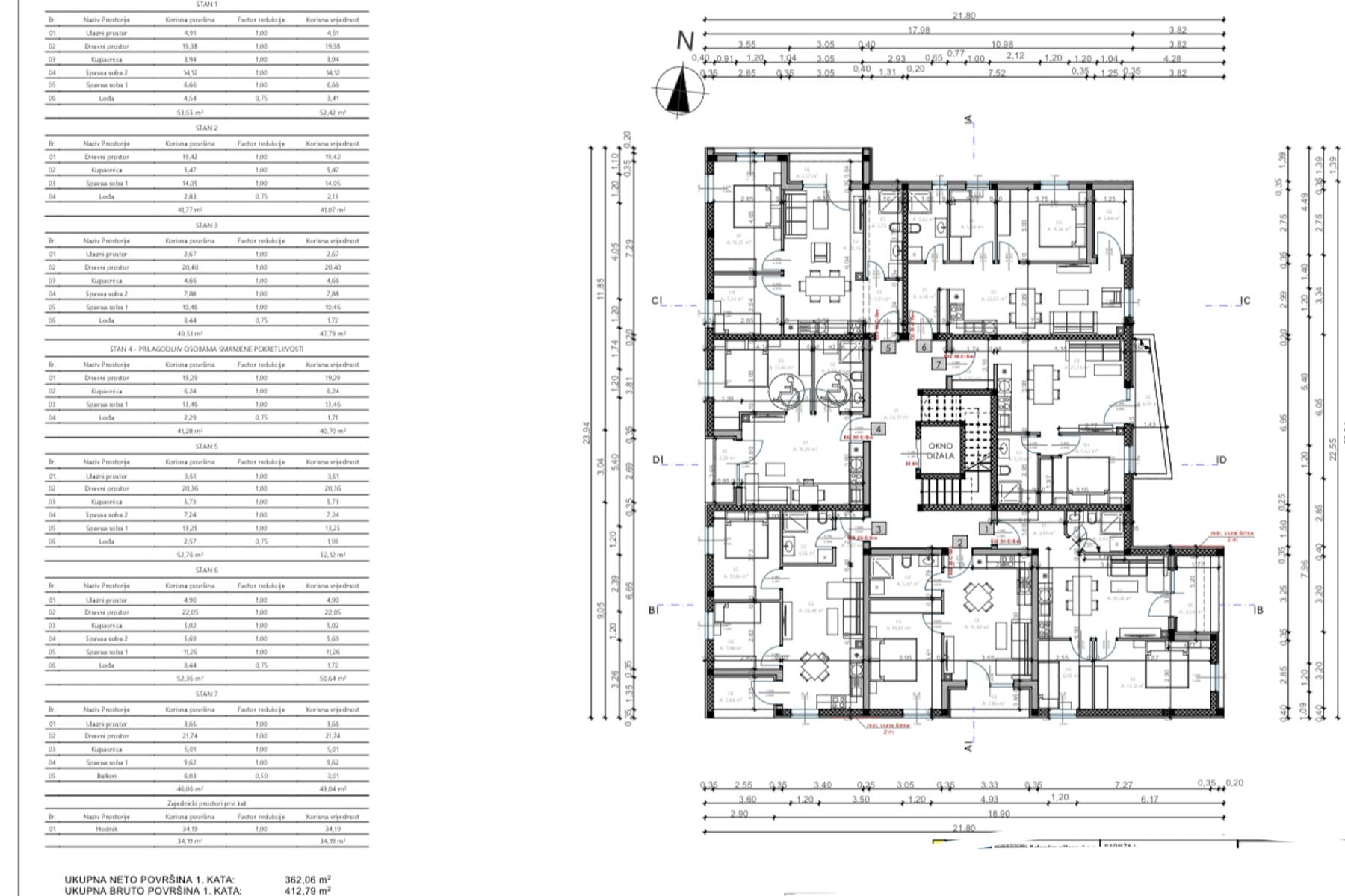
Офертата се отнася за комфортен апартамент, разположен в модерен многофамилен блок, включващ 28 жилищни единици. Имотът се намира на удобно място, близо до най-важните точки на градската инфраструктура. В околността има учебни заведения, детски градини, кафенета, медицински центрове и търговски центрове, което улеснява задоволяването на ежедневните нужди. Апартаментът има полезна площ малко над 49 м². Разпределението включва удобен коридор, дневна, баня, две спални и остъклена лоджия. Жилището е оборудвано сред другото с висококачествени PVC дограми. Помещението е подходящо както за постоянно живеене, така и за отдих или инвестиционни цели, идеално за хора, които ценят удобството и функционалността на пространството.
Проектът на сградата се отличава с модерна архитектура и използване на трайни строителни материали. Всеки апартамент разполага със собствена лоджия, която дава възможност за отдих на открито. Локацията и стандартът на довършителните работи правят имота подходящ дори за най-взискателните клиенти. Близостта до ключови услуги позволява бързо и удобно ежедневие. В съседство има осигурени безопасни паркоместа и зелени площи, идеални за разходки.
Имотът се отличава с добре обмислено разпределение и солидно изпълнение. Сградата е нова, което означава по-ниски разходи за поддръжка и висок комфорт на живот. Комбинацията от две спални с просторна дневна позволява оптимално използване на наличната площ. Лоджията представлява допълнително пространство, което може да се използва за релакс или да се създаде малка градина в саксии. Апартаментът се намира в спокойна зона с лесен достъп до градската инфраструктура.
Използването на модерни материали и решения прави апартамента енергийно ефективен. PVC прозорците осигуряват достатъчно естествена светлина и акустична изолация. Множество удобства гарантират комфортен живот във всеки етап от ползването му. Обмисленият пространствен план позволява свободна аранжировка според предпочитанията. Сградата е под професионална администрация, което допринася за реда и доброто управление на имота. Апартаментът е готов за живеене или отдаване под наем без необходимост от големи финансови вложения. В района има голям избор от хранителни магазини и ресторанти, предлагащи местни специалитети.
Пула е очарователен град, разположен на полуостров Истрия. Този регион е известен с красивите си плажове и богато историческо наследство. Климатичните условия са подходящи за целогодишно живеене и туризъм. Градът предлага разнообразни възможности за отдих – от разходки по историческите улички до активности на открито. Пула се отличава с добре развита инфраструктура, която отговаря на нуждите както на жителите, така и на инвеститорите.
Предимствата на локацията влияят върху комфорта на ежедневието и инвестиционния потенциал на имота. Добрата връзка с основните пътища позволява лесен достъп както до центъра, така и до крайбрежните зони за почивка. Инвестицията на това място е възможност за стабилен ръст на стойността. Околността с висока концентрация на услуги гарантира бързо удовлетворяване на всяка нужда. Любителите на тишината ще намерят своето място тук, като същевременно няма да бъдат лишени от градските удобства. Много зелени площи насърчават активното прекарване на времето навън, което повишава привлекателността на тази част от града.
Сътрудничеството с професионална агенция за недвижими имоти гарантира пълна подкрепа във всеки етап от инвестицията. Агенция за недвижими имоти GoESTE предоставя услуги, включващи надеждна оценка, висококачествени визуални материали и комплексна помощ при подготовката на документи. Благодарение на това процесът по покупката протича гладко и безпроблемно, минимизирайки риска и стреса за купувача.
Индивидуалният подход към клиента и грижата за детайлите осигуряват оптимално съобразяване на офертата с нуждите му. Агенцията предлага също помощ при ценови преговори и обслужване на финансирането. Решението за покупка на имот трябва да бъде добре обмислено, затова професионалната консултация е особено важна. Тази услуга дава увереност, че инвестицията ще се превърне в източник на удовлетворение и трайна стойност.
Консултант по офертата
Агент по недвижими имоти
Agencja Nieruchomości GoESTE
Ако имаш въпроси относно офертата или се нуждаеш от друга, с удоволствие ще отговорим.
Пиши ни или се свържи с нас по телефон.
Хърватия е страна, разположена на границата между Централна и Южна Европа. Географски Хърватия се дели на сухоземна част, където се намира столицата Загреб, и крайбрежна част с много известни туристически градове като: Сплит, Задар, Дубровник, Риека. Що се отнася до недвижимите имоти в Хърватия, най-голям интерес сред инвеститорите предизвикват тези имоти за продажба, разположени в крайбрежната част на страната. Трябва да се има предвид, че освен сухоземната част, Хърватия разполага и с огромен брой острови, от които няколко десетки са обитавани. Благодарение на това общата дължина на морската ивица надвишава 5000 км.
Хърватия се радва на голяма популярност сред туристи практически от цяла Европа. Много голяма част от приноса към хърватския БВП идва именно от туристическите услуги. Поради тази причина голяма част от инвеститорите закупуват недвижими имоти в Хърватия с цел туристическо отдаване под наем. Най-популярни за тази цел са двустайни или тристайни апартаменти в близост до морето.
Недвижимите имоти в Хърватия имат свой собствен стил и преди всичко чар. В Хърватия могат да се срещнат както много стари части на градове, датиращи още от Средновековието, така и типично модернистични съвременни сгради. Последните обаче са значително по-малко. Преди време голяма популярност имаха старите каменни къщи, често буквално изоставени. Камъкът е много видим в хърватската архитектура. Къщите в Хърватия притежават свой стил, който много интересно се съчетава с околната природа и е доста типичен за Южна Европа. В непосредствената близост до домовете идеално се вписват домашните маслинови дървета, смокини и широко разпространената лоза.
Подобно на други страни, още преди покупката трябва да определим предназначението на нашия имот. Недвижимите имоти в Хърватия, закупени с туристическа цел, за да печелят ефективно, трябва да отговарят на малко по-различни изисквания от тези, купени за задоволяване на лични нужди. Когато купуваме имот за себе си, често сме готови да направим малки жертви и компромиси в полза на по-ниска покупна цена. При такъв имот най-важното е да се чувстваме добре. В този случай дори 20-минутното разстояние до морето не трябва да бъде голяма пречка за нас. В края на краищата след първоначалното наситено лятно море не е необходимо да сме там всеки ден.
Имоти в Хърватия, предназначени за доходен наем, за да печелят сами за себе си, трябва да отговарят на очакванията на туристите, които ще пребивават в тях за ограничен период от време. Точно този ограничен период прави така, че очакванията към имота, който туристът избере, трябва да покриват възможно най-много изисквания. Много важно е близостта до морето и удобствата за отдих. Много голямо предимство е разбира се гледката към Адриатика от прозорците на нашия апартамент или къща. Ако изберем къща, много силно предимство е басейнът, който в горещите дни е много ефективна форма на релакс. Туристите са готови да платят повече именно за тези предимства. Затова определено по-голям интерес и съответно по-висока възвръщаемост генерират тези апартаменти и жилища, които гарантират удобни условия за пристигащите. Туристите, планиращи почивка с бюджетен характер, обикновено не избират апартаменти и жилища, а предпочитат много популярните в Хърватия къмпинги с модулни къщички и места за кемпери.
Отговаряйки на този въпрос, също трябва да решим какво ще бъде крайното предназначение на имота. Ако планираме да закупим апартамент или къща в Хърватия за собствено ползване, имаме пълна свобода и трябва да се ръководим от собствения си вкус и основните очаквания към мечтания имот.
Ако обаче нашият имот трябва преди всичко да изпълнява доходни функции, трябва да се фокусираме върху такива райони, които са или в бъдеще ще бъдат популярни сред туристите. Нека не забравяме също, че малко по-различни са очакванията на семейство 2+2 и други – на група млади приятели. Несъмнено предимство на имотите в Хърватия с туристическо предназначение е комуникацията. Близостта до летища тук е безспорно предимство. За щастие в Хърватия има доста летища в крайморски градове, които се обслужват и от нискотарифни авиокомпании. Докато най-популярната туристическа дестинация, но и най-скъпата по отношение на цените на имотите е Дубровник, то при избор на имоти в обхвата на летищата в Задар и Сплит все още може да се закупят апартаменти на сравнително достъпна цена.
Хърватия разполага с дълга морска ивица и голямата част от инвестициите в недвижими имоти са съсредоточени именно в този район. Адриатическото море в този регион има много красиви нюанси, понякога буквално като от картичка. Това безспорно е огромно туристическо предимство. Важно е обаче да се подчертае, че в Хърватия има много малко типични пясъчни плажове. Значително по-голяма част от крайбрежната ивица са каменисти брегове, а около градовете дори бетонни. Разбира се, на тези места може да се къпе човек, но често се препоръчва използването на специални защитни обувки. Поради тази причина районите с пясъчни плажове както по сушата, така и на островите, са изключително популярни и търсени. Много очарователни могат да бъдат и камерните заливчета, които придават необикновен чар. Някои от тях служат и за акостиране на яхти. Релефът на много места в Хърватия е изключително живописен. От красивото море практически директно се издигат живописни хълмове, а често и отчетливи планини. Такъв релеф не само радва окото, но дава възможност на недвижимите имоти, построени на хълмовете в 10-та крайбрежна линия, да гарантират красиви панорами към Адриатическо море.
Цените на недвижимите имоти за продажба в Хърватия се посочват подобно на много други европейски страни в евро, въпреки че Хърватия има собствена валута куна. При решението за покупка на недвижим имот в Хърватия е много важно да знаете точно какво търсите. Ако е възможно, добре е да стесните търсенето по местоположение и цена. Така може значително повече време да отделите за анализ на тези имоти, които потенциално отговарят на вашите очаквания. Най-добре основният подбор да бъде направен още по време на престоя ви в Полша. Когато решите за избран имот, трябва да направите платена резервация, за да сте сигурни, че той няма да бъде показван на други заинтересовани лица. Недвижимите имоти в Хърватия продължават да се радват на голям интерес сред жителите почти на цяла Европа и дори ако няма типичен икономически бум, такова количество заинтересовани особено през сезона води до това най-популярните имоти бързо да намерят нов купувач.
Оцени
Само влезли в профила си потребители могат да оценяват
Средна оценка 5 / 5. Брой оценки 21
Няма оценки. Бъди първият, който ще оцени тази публикация.