Модерен апартамент, разположен в динамично развиващата се част на Пула, представлява отлична оферта за хора, търсещи удобство и практично разпределение на интериора. Имотът се намира в новопостроена жилищна сграда, която предлага общо 28 жилища. Локацията позволява ползването на пълната градска инфраструктура, като в близост са налични образователни институции, търговски центрове и здравни заведения.
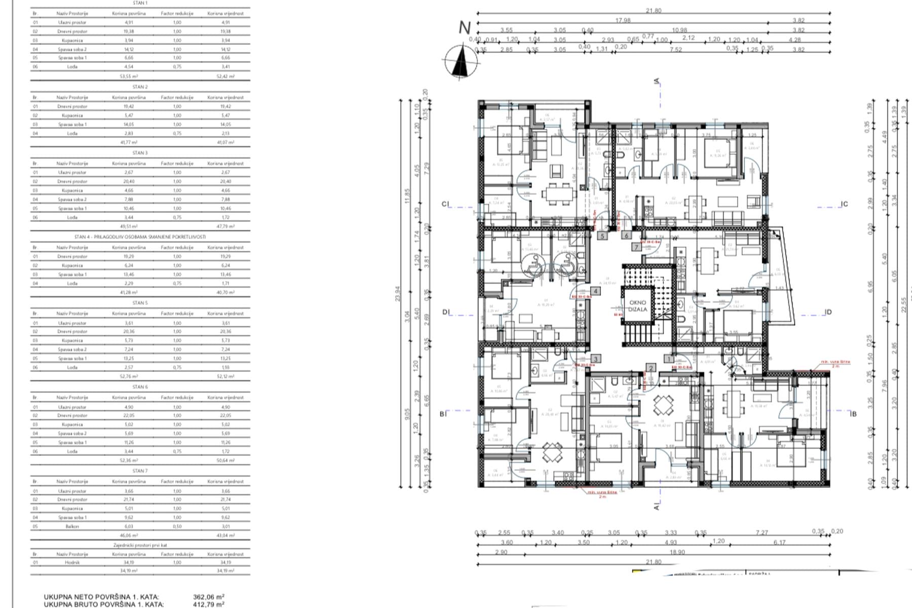
Представеният имот с площ малко над 41 квадратни метра е проектиран с мисъл за функционалност и естетика. Той се състои от дневна с кухненски бокс, баня, спалня и просторна лоджия. Апартаментът е оборудван с модерни PVC прозорци и климатична система, което гарантира комфорт през цялата година. Това е идеалното място за един човек или двойка, които ценят както удобството, така и близостта до градските атракции.
Поради атрактивното си местоположение тази оферта представлява отлична инвестиция както за живеене, така и за краткосрочен или дългосрочен наем.
Апартаментът се намира в модерен комплекс, който се отличава с прецизно изпълнение и висок стандарт на използваните материали. Сградата е обградена от приветлива околна среда, а достъпът до ключови точки на града е бърз и удобен. Интериорът предлага светло пространство, което може да бъде свободно аранжирано според личните нужди.
Интериорът се характеризира с модерен стил и естетика. Апартаментът разполага с отворено дневно пространство, което увеличава функционалността и дава възможност за свободна аранжировка.
Лоджията е отлично място за почивка и релакс на открито. Позволява да се наслаждавате на слънцето или гледката без необходимост да излизате от дома си.
Конструкцията на сградата осигурява добър стандарт на изолация и енергийна ефективност. Апартаментът гарантира тишина и топлинен комфорт независимо от сезона.
Тази оферта представлява отлично съчетание между достъпността до градската инфраструктура и комфорта на живот в спокойна, добре устроена околност.
Пула е град с богата история и разнообразно туристическо предложение, който се радва на популярност сред хората, търсещи както ваканционни имоти, така и постоянно място за живеене. Разположен в южната част на Истрия, градът предлага смес от култури и красиви пейзажи, което привлича много инвеститори и любители на Адриатическо море.
Около него има магазини и услуги, както и образователни институции и здравни заведения, което улеснява ежедневния живот. Обществен транспорт е добре развит, което осигурява лесна комуникация с останалите части на града и региона.
В района има кафенета и ресторанти, които създават оживено градско пространство. Градът съчетава традицията с модерността, което прави живота тук комфортен през цялата година.
Близостта до плажове и зелени площи осигурява идеални условия за активно прекарване на времето сред природата. Това е място, където лесно се намира баланс между градския начин на живот и почивката.
Пула е трайно вписанa на картата на най-привлекателните места за инвестиции на полуостров Истрия, което повишава стойността на предлаганите имоти.
Агенция за недвижими имоти GoESTE се специализира в комплексното обслужване при покупка на имоти в Хърватия. Подкрепата включва оценка, професионална фотография, подготовка на презентации, водене на преговори и правни формалности. Всяка сделка се провежда с внимание към индивидуалните нужди на клиента и безопасното протичане на процеса.
Избирайки сътрудничество с агенцията, може да разчитате на помощ при намиране на оптимален инвестиционен вариант, както и подкрепа при получаване на кредит. Всички действия се извършват прозрачно, което гарантира пълно усещане за сигурност по време на покупката на имота.
Консултант по офертата
Агент по недвижими имоти
Agencja Nieruchomości GoESTE
Ако имаш въпроси относно офертата или се нуждаеш от друга, с удоволствие ще отговорим.
Пиши ни или се свържи с нас по телефон.
Хърватия е страна, разположена на границата между Централна и Южна Европа. Географски Хърватия се дели на сухоземна част, където се намира столицата Загреб, и крайбрежна част с много известни туристически градове като: Сплит, Задар, Дубровник, Риека. Що се отнася до недвижимите имоти в Хърватия, най-голям интерес сред инвеститорите предизвикват тези имоти за продажба, разположени в крайбрежната част на страната. Трябва да се има предвид, че освен сухоземната част, Хърватия разполага и с огромен брой острови, от които няколко десетки са обитавани. Благодарение на това общата дължина на морската ивица надвишава 5000 км.
Хърватия се радва на голяма популярност сред туристи практически от цяла Европа. Много голяма част от приноса към хърватския БВП идва именно от туристическите услуги. Поради тази причина голяма част от инвеститорите закупуват недвижими имоти в Хърватия с цел туристическо отдаване под наем. Най-популярни за тази цел са двустайни или тристайни апартаменти в близост до морето.
Недвижимите имоти в Хърватия имат свой собствен стил и преди всичко чар. В Хърватия могат да се срещнат както много стари части на градове, датиращи още от Средновековието, така и типично модернистични съвременни сгради. Последните обаче са значително по-малко. Преди време голяма популярност имаха старите каменни къщи, често буквално изоставени. Камъкът е много видим в хърватската архитектура. Къщите в Хърватия притежават свой стил, който много интересно се съчетава с околната природа и е доста типичен за Южна Европа. В непосредствената близост до домовете идеално се вписват домашните маслинови дървета, смокини и широко разпространената лоза.
Подобно на други страни, още преди покупката трябва да определим предназначението на нашия имот. Недвижимите имоти в Хърватия, закупени с туристическа цел, за да печелят ефективно, трябва да отговарят на малко по-различни изисквания от тези, купени за задоволяване на лични нужди. Когато купуваме имот за себе си, често сме готови да направим малки жертви и компромиси в полза на по-ниска покупна цена. При такъв имот най-важното е да се чувстваме добре. В този случай дори 20-минутното разстояние до морето не трябва да бъде голяма пречка за нас. В края на краищата след първоначалното наситено лятно море не е необходимо да сме там всеки ден.
Имоти в Хърватия, предназначени за доходен наем, за да печелят сами за себе си, трябва да отговарят на очакванията на туристите, които ще пребивават в тях за ограничен период от време. Точно този ограничен период прави така, че очакванията към имота, който туристът избере, трябва да покриват възможно най-много изисквания. Много важно е близостта до морето и удобствата за отдих. Много голямо предимство е разбира се гледката към Адриатика от прозорците на нашия апартамент или къща. Ако изберем къща, много силно предимство е басейнът, който в горещите дни е много ефективна форма на релакс. Туристите са готови да платят повече именно за тези предимства. Затова определено по-голям интерес и съответно по-висока възвръщаемост генерират тези апартаменти и жилища, които гарантират удобни условия за пристигащите. Туристите, планиращи почивка с бюджетен характер, обикновено не избират апартаменти и жилища, а предпочитат много популярните в Хърватия къмпинги с модулни къщички и места за кемпери.
Отговаряйки на този въпрос, също трябва да решим какво ще бъде крайното предназначение на имота. Ако планираме да закупим апартамент или къща в Хърватия за собствено ползване, имаме пълна свобода и трябва да се ръководим от собствения си вкус и основните очаквания към мечтания имот.
Ако обаче нашият имот трябва преди всичко да изпълнява доходни функции, трябва да се фокусираме върху такива райони, които са или в бъдеще ще бъдат популярни сред туристите. Нека не забравяме също, че малко по-различни са очакванията на семейство 2+2 и други – на група млади приятели. Несъмнено предимство на имотите в Хърватия с туристическо предназначение е комуникацията. Близостта до летища тук е безспорно предимство. За щастие в Хърватия има доста летища в крайморски градове, които се обслужват и от нискотарифни авиокомпании. Докато най-популярната туристическа дестинация, но и най-скъпата по отношение на цените на имотите е Дубровник, то при избор на имоти в обхвата на летищата в Задар и Сплит все още може да се закупят апартаменти на сравнително достъпна цена.
Хърватия разполага с дълга морска ивица и голямата част от инвестициите в недвижими имоти са съсредоточени именно в този район. Адриатическото море в този регион има много красиви нюанси, понякога буквално като от картичка. Това безспорно е огромно туристическо предимство. Важно е обаче да се подчертае, че в Хърватия има много малко типични пясъчни плажове. Значително по-голяма част от крайбрежната ивица са каменисти брегове, а около градовете дори бетонни. Разбира се, на тези места може да се къпе човек, но често се препоръчва използването на специални защитни обувки. Поради тази причина районите с пясъчни плажове както по сушата, така и на островите, са изключително популярни и търсени. Много очарователни могат да бъдат и камерните заливчета, които придават необикновен чар. Някои от тях служат и за акостиране на яхти. Релефът на много места в Хърватия е изключително живописен. От красивото море практически директно се издигат живописни хълмове, а често и отчетливи планини. Такъв релеф не само радва окото, но дава възможност на недвижимите имоти, построени на хълмовете в 10-та крайбрежна линия, да гарантират красиви панорами към Адриатическо море.
Цените на недвижимите имоти за продажба в Хърватия се посочват подобно на много други европейски страни в евро, въпреки че Хърватия има собствена валута куна. При решението за покупка на недвижим имот в Хърватия е много важно да знаете точно какво търсите. Ако е възможно, добре е да стесните търсенето по местоположение и цена. Така може значително повече време да отделите за анализ на тези имоти, които потенциално отговарят на вашите очаквания. Най-добре основният подбор да бъде направен още по време на престоя ви в Полша. Когато решите за избран имот, трябва да направите платена резервация, за да сте сигурни, че той няма да бъде показван на други заинтересовани лица. Недвижимите имоти в Хърватия продължават да се радват на голям интерес сред жителите почти на цяла Европа и дори ако няма типичен икономически бум, такова количество заинтересовани особено през сезона води до това най-популярните имоти бързо да намерят нов купувач.
Оцени
Само влезли в профила си потребители могат да оценяват
Средна оценка 5 / 5. Брой оценки 21
Няма оценки. Бъди първият, който ще оцени тази публикация.