Menu
актуална
Апартамент 41 м2 в Пула, Хърватия - GST614008 46db2deb23d6592ba39a46fd859176cd-16
Апартамент 41 м2 в Пула, Хърватия - GST614008 053b7a1614198599abf3de57683592a3-16
Апартамент 41 м2 в Пула, Хърватия - GST614008 72eb1b444f6a9f34cb8c23aef311d4ee-16
Апартамент 41 м2 в Пула, Хърватия - GST614008 45ae76e629e10a4d8ad8f1abb3385fd9-16
Апартамент 41 м2 в Пула, Хърватия - GST614008 27ec05f7e6671fedeb6d168aa12e5983-16

Апартамент в модерен сграда, идеален за хора с ограничена подвижност

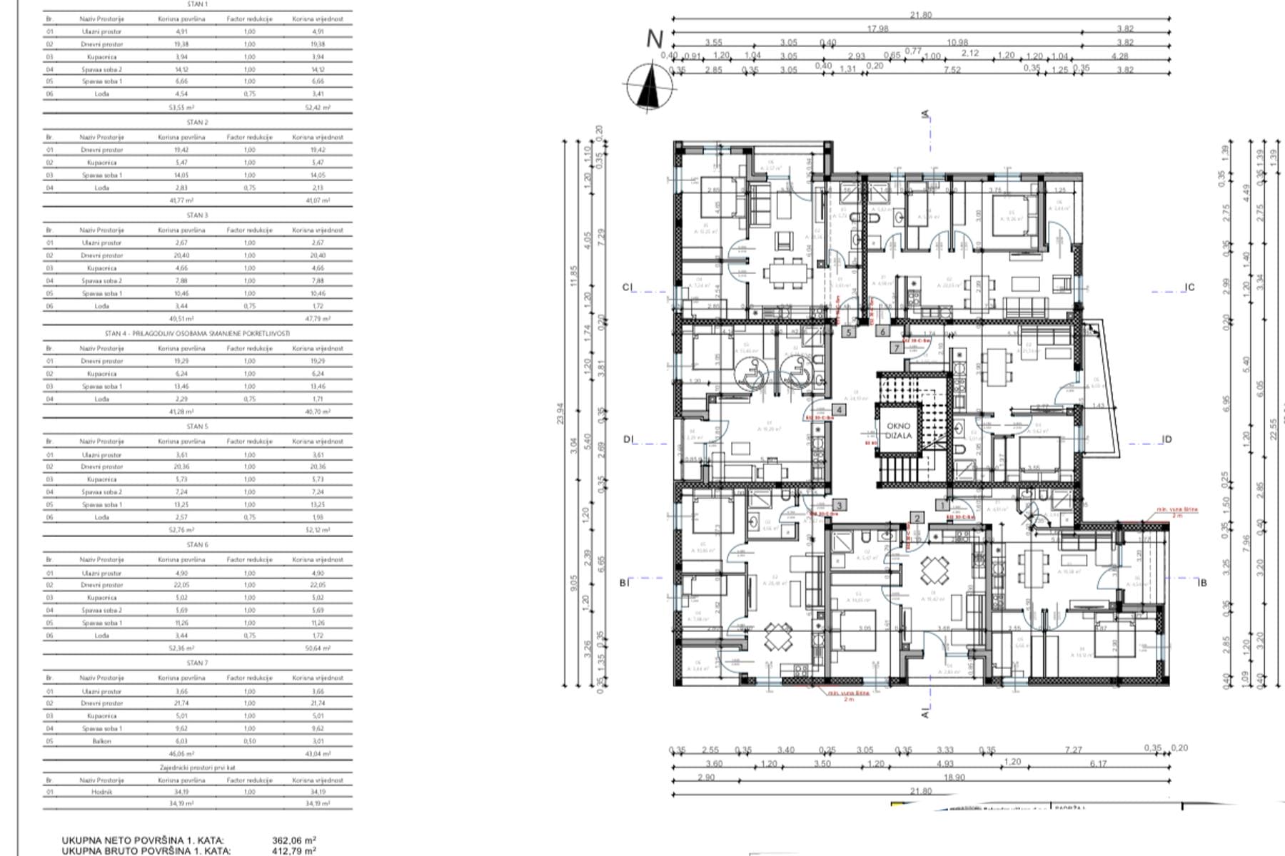
Представеният имот е светъл апартамент с площ от 41 м², разположен в модерен сграда в град Пула. Жилището се състои от просторна дневна, спалня, баня и практична лоджия, която увеличава комфорта при ползване. Сградата съдържа 28 апартамента, което допринася за спокойна атмосфера и осигурява комфорт на живущите. Апартаментът е проектиран така, че да улесни ежедневието на хора с ограничена подвижност, което е важен плюс за взискателните потребители.

Разположението близо до ключова инфраструктура като училища, детски градини, магазини, услуги, кафенета и медицински заведения осигурява удобство всеки ден. Апартаментът представлява отлична възможност за инвестиция или място за живеене в очарователния морски град, който съчетава туристически предимства с развита градска инфраструктура. Обобщено, офертата е добре обмислена и позволява комфортно живеене дори за хора със специални нужди.

Детайли на имота

Имотът, разположен в нова сграда, отговаря на съвременните стандарти и предлага функционално разпределение на помещенията. Удобното разположение позволява свободно ползване на пространството, а приложените решения адаптират апартамента към нуждите на хора с ограничена мобилност. Благодарение на това жилището е практично както като еднофамилна къща, така и като инвестиция за отдаване под наем.

  • Тип имот: апартамент
  • Полезна площ: 41 м²
  • Брой стаи: 1
  • Брой бани: 1
  • Адаптация: пригодено за хора с ограничена подвижност
  • Етаж: нова сграда в комплекс от 28 апартамента
  • Тип строителство: многофамилна сграда
  • Допълнително оборудване: лоджия

Апартаментът е добре осветен благодарение на големите прозорци и лоджията, което положително влияе върху комфорта при живеене. Функционалното разпределение позволява разнообразни аранжировки, които могат да адаптират пространството според личните нужди. Локацията на сградата осигурява бърз достъп до пълната градска инфраструктура и същевременно гарантира спокойствие и интимна атмосфера.

Благодарение на добре обмислената организация на пространството и достъпа до обществени места апартаментът отговаря на високите стандарти за живот. Банята и входът към сградата са пригодени за удобно ползване от хора с ограничена мобилност, което е значително улеснение. Имотът е идеален за клиенти търсещи удобство, сигурност и практична връзка с градския живот.

Локация и предимства на инвестицията

Пула е град с богата история и изключително разположение на полуостров Истрия в Хърватия. Известен е със своите многобройни забележителности, красиви плажове и развита инфраструктура. Това място привлича не само туристи, но и инвеститори както и хора търсещи спокоен живот сред природата и морето. Регионалният културен и икономически център гарантира достъп до множество услуги и атракции всеки ден.

  1. Отлична инфраструктура: близост до училища, детски градини, магазини и медицински заведения
  2. Достъп до транспорт: удобни връзки с останалата част на града и региона
  3. Климат и природни дадености: топли, слънчеви дни и възможност за ползване на близките плажове
  4. Сигурност и спокойствие: уютен жилищен комплекс в съвременна сграда
  5. Възможности за отдих: парк, велоалеи и богато развлекателно предложение

Животът в този район предлага лесен достъп до най-необходимите услуги. Около има кафенета, ресторанти и търговски центрове, които улесняват ежедневието и осигуряват забавления. Близостта до морето придава чар и позволява активното прекарване на свободното време, което е изключително важно за здравето и доброто самочувствие. Живеенето на това място е също така отлична инвестиция, като се има предвид нарастващият интерес към региона.

Високото качество на живот върви ръка за ръка с привлекателната околна среда и удобния достъп до услуги. Това е идеален избор за хора, които ценят комфорта, модерността и сигурното и стилно място за живеене.

Закупуване на недвижим имот в Пула, Хърватия

Изборът на жилище в тази локация все по-често става осъзнат инвестиционен и житейски избор. Комплексната оферта на Агенция за недвижими имоти GoESTE улеснява безопасния процес на покупка, осигурявайки професионални консултации и подкрепа на всеки етап. Професионалният подход към клиента и опитът гарантират гладко и комфортно протичане на сделките.

Агенцията предоставя помощ както при оценката на имота, така и при подготовката на всички необходими документи. Офертата включва също модерни методи за представяне на имотите, както и подкрепа при ценови преговори. Възможно е да се използва помощ при осигуряване на финансиране, което улеснява финализирането на покупката и прави процеса прозрачен и безстресов.

Повече

Апартамент 41 м2 в Пула, Хърватия – GST614008

Копирай линка на офертата
актуална
Код на офертата: GST614008
Цена: 128 840 EUR
Тип на сделката: продажба
Жилищна площ: 41 m2
Град: Pula
Тип недвижим имот: Апартамент
Брой стаи: 1
Брой бани: 1
Година на строителство: 2024
Сподели оферта

Консултант по офертата

Агент по недвижими имоти

Agencja Nieruchomości GoESTE

Свържи се

Ако имаш въпроси относно офертата или се нуждаеш от друга, с удоволствие ще отговорим.
Пиши ни или се свържи с нас по телефон.

Продаж на недвижими имоти в Хърватия

Хърватия е страна, разположена на границата между Централна и Южна Европа. Географски Хърватия се дели на сухоземна част, където се намира столицата Загреб, и крайбрежна част с много известни туристически градове като: Сплит, Задар, Дубровник, Риека. Що се отнася до недвижимите имоти в Хърватия, най-голям интерес сред инвеститорите предизвикват тези имоти за продажба, разположени в крайбрежната част на страната. Трябва да се има предвид, че освен сухоземната част, Хърватия разполага и с огромен брой острови, от които няколко десетки са обитавани. Благодарение на това общата дължина на морската ивица надвишава 5000 км.

Недвижими имоти в Хърватия с туристически характер

Хърватия се радва на голяма популярност сред туристи практически от цяла Европа. Много голяма част от приноса към хърватския БВП идва именно от туристическите услуги. Поради тази причина голяма част от инвеститорите закупуват недвижими имоти в Хърватия с цел туристическо отдаване под наем. Най-популярни за тази цел са двустайни или тристайни апартаменти в близост до морето.

Архитектурен стил на недвижимите имоти в Хърватия

Недвижимите имоти в Хърватия имат свой собствен стил и преди всичко чар. В Хърватия могат да се срещнат както много стари части на градове, датиращи още от Средновековието, така и типично модернистични съвременни сгради. Последните обаче са значително по-малко. Преди време голяма популярност имаха старите каменни къщи, често буквално изоставени. Камъкът е много видим в хърватската архитектура. Къщите в Хърватия притежават свой стил, който много интересно се съчетава с околната природа и е доста типичен за Южна Европа. В непосредствената близост до домовете идеално се вписват домашните маслинови дървета, смокини и широко разпространената лоза.

На какво да обърнем внимание при покупка на недвижими имоти в Хърватия

Подобно на други страни, още преди покупката трябва да определим предназначението на нашия имот. Недвижимите имоти в Хърватия, закупени с туристическа цел, за да печелят ефективно, трябва да отговарят на малко по-различни изисквания от тези, купени за задоволяване на лични нужди. Когато купуваме имот за себе си, често сме готови да направим малки жертви и компромиси в полза на по-ниска покупна цена. При такъв имот най-важното е да се чувстваме добре. В този случай дори 20-минутното разстояние до морето не трябва да бъде голяма пречка за нас. В края на краищата след първоначалното наситено лятно море не е необходимо да сме там всеки ден.

Имоти в Хърватия, предназначени за доходен наем, за да печелят сами за себе си, трябва да отговарят на очакванията на туристите, които ще пребивават в тях за ограничен период от време. Точно този ограничен период прави така, че очакванията към имота, който туристът избере, трябва да покриват възможно най-много изисквания. Много важно е близостта до морето и удобствата за отдих. Много голямо предимство е разбира се гледката към Адриатика от прозорците на нашия апартамент или къща. Ако изберем къща, много силно предимство е басейнът, който в горещите дни е много ефективна форма на релакс. Туристите са готови да платят повече именно за тези предимства. Затова определено по-голям интерес и съответно по-висока възвръщаемост генерират тези апартаменти и жилища, които гарантират удобни условия за пристигащите. Туристите, планиращи почивка с бюджетен характер, обикновено не избират апартаменти и жилища, а предпочитат много популярните в Хърватия къмпинги с модулни къщички и места за кемпери.

В кои райони да купим апартамент в Хърватия?

Отговаряйки на този въпрос, също трябва да решим какво ще бъде крайното предназначение на имота. Ако планираме да закупим апартамент или къща в Хърватия за собствено ползване, имаме пълна свобода и трябва да се ръководим от собствения си вкус и основните очаквания към мечтания имот.
Ако обаче нашият имот трябва преди всичко да изпълнява доходни функции, трябва да се фокусираме върху такива райони, които са или в бъдеще ще бъдат популярни сред туристите. Нека не забравяме също, че малко по-различни са очакванията на семейство 2+2 и други – на група млади приятели. Несъмнено предимство на имотите в Хърватия с туристическо предназначение е комуникацията. Близостта до летища тук е безспорно предимство. За щастие в Хърватия има доста летища в крайморски градове, които се обслужват и от нискотарифни авиокомпании. Докато най-популярната туристическа дестинация, но и най-скъпата по отношение на цените на имотите е Дубровник, то при избор на имоти в обхвата на летищата в Задар и Сплит все още може да се закупят апартаменти на сравнително достъпна цена.

Адриатическо море в Хърватия

Хърватия разполага с дълга морска ивица и голямата част от инвестициите в недвижими имоти са съсредоточени именно в този район. Адриатическото море в този регион има много красиви нюанси, понякога буквално като от картичка. Това безспорно е огромно туристическо предимство. Важно е обаче да се подчертае, че в Хърватия има много малко типични пясъчни плажове. Значително по-голяма част от крайбрежната ивица са каменисти брегове, а около градовете дори бетонни. Разбира се, на тези места може да се къпе човек, но често се препоръчва използването на специални защитни обувки. Поради тази причина районите с пясъчни плажове както по сушата, така и на островите, са изключително популярни и търсени. Много очарователни могат да бъдат и камерните заливчета, които придават необикновен чар. Някои от тях служат и за акостиране на яхти. Релефът на много места в Хърватия е изключително живописен. От красивото море практически директно се издигат живописни хълмове, а често и отчетливи планини. Такъв релеф не само радва окото, но дава възможност на недвижимите имоти, построени на хълмовете в 10-та крайбрежна линия, да гарантират красиви панорами към Адриатическо море.

Недвижими имоти в Хърватия

Цените на недвижимите имоти за продажба в Хърватия се посочват подобно на много други европейски страни в евро, въпреки че Хърватия има собствена валута куна. При решението за покупка на недвижим имот в Хърватия е много важно да знаете точно какво търсите. Ако е възможно, добре е да стесните търсенето по местоположение и цена. Така може значително повече време да отделите за анализ на тези имоти, които потенциално отговарят на вашите очаквания. Най-добре основният подбор да бъде направен още по време на престоя ви в Полша. Когато решите за избран имот, трябва да направите платена резервация, за да сте сигурни, че той няма да бъде показван на други заинтересовани лица. Недвижимите имоти в Хърватия продължават да се радват на голям интерес сред жителите почти на цяла Европа и дори ако няма типичен икономически бум, такова количество заинтересовани особено през сезона води до това най-популярните имоти бързо да намерят нов купувач.

Повече

Оцени

Само влезли в профила си потребители могат да оценяват

Средна оценка 5 / 5. Брой оценки 21

Няма оценки. Бъди първият, който ще оцени тази публикация.

Провери офертите

  • Dom w Sukošan z 5 mieszkaniami i przestrzenią biznesową H Sukosan

    Дом в Сукошан с 5 апартамента и бизнес пространство

    Sukošan,
    Хърватия
    продадена
    Къща в Сукосан с пет апартамента и бизнес площ За продажба се предлага просторна къща с 5 апартамента и допълнителна площ, предназначена за търговска дейност. Обектът...
  • Apartament na 2 piętrze, 150m od morza, nowy budynek, Privlaka A A Privlaka Apartmani Emporia Nekretnine

    Апартамент на 2-ри етаж, на 150 м от морето, нова сграда, Привлака

    Privlaka,
    Хърватия
    продадена
    Апартамент на 2-ри етаж в Привлака на 150 м от морето Предлаганият апартамент, разположен на 2-ри етаж в модерен блок в живописното селище Привлака, представлява идеално...
  • Dom z kamienia z podwórzem 2152 m2, widok na morze, 100 m od morza, Ugljan H Ugljan Stone House Emporia Real Estate

    Къща от камък с двор 2152 м2, изглед към морето, на 100 м от морето, Углян

    Preko,
    Хърватия
    продадена
    Каменна къща с двор и морска панорама в Углян Предлаганата оферта се отнася за изключителна каменна къща, разположена на живописния остров Углян, в местността Поляна. Този...
  • W pełni umeblowany apartament z widokiem na morze - 3 piętro 46,55 m2, Starigrad A Emporia Nekretnine Starigrad

    Напълно обзаведен апартамент с морска гледка – 3-ти етаж 46,55 м2, Стариград

    Starigrad,
    Хърватия
    продадена
    Напълно обзаведен апартамент с морска гледка в Стариград За продажба се предлага изключителен апартамент с площ от 46,55 м², разположен на третия етаж на жилищна сграда,...
  • Luksusowa willa z basenem, nowy budynek, Zaton H Zaton Villa Pool Sea

    Луксозна вила с басейн, нова сграда, Затон

    Nin,
    Хърватия
    продадена
    Луксозна вила с басейн в живописния Затон В офертата е налична изключителна луксозна вила с басейн в крайморския град Затон. Тази модерна сграда с обща площ...
  • Nieruchomość biznesowa w doskonałej lokalizacji w Smiljevac, Zadar B Zadar Emporia

    Бизнес имот в отлично местоположение в Смильевац, Задар

    Zadar,
    Хърватия
    продадена
    Бизнес имот в сърцето на Смильевац, Задар За продажба е изключителен бизнес имот, разположен на отлично място в Смильевац, близо до Задар. Предлаганото помещение, разположено на...
  • Apartament w nowym budynku, Borik, Zadar F F Borik Zadar Emporia Nekretnine Stanovi

    Апартамент в нова сграда, Борик, Задар

    Zadar,
    Хърватия
    продадена
    Модерен апартамент за продажба в очарователния район на Задар За продажба е новопостроен апартамент, разположен в живописния квартал Борик в Задар. Идеален за хора, търсещи комфортно...
  • Działka budowlana - 1880 m2, Vinjerac Izrezak

    Парцел за строителство – 1880 м2, Винерац

    Posedarje,
    Хърватия
    продадена
    Очарователен парцел за строителство във Винерац с площ 1880 м2 Предложение за покупка на атрактивен строителен парцел в живописното селище Винерац. Площта от 1880 м2 отваря...
  • Dom z dużym ogrodem i widokiem na morze, Novigrad H Emporia Nekretnine Zadar Novigrad

    Къща с голяма градина и изглед към морето, Новиград

    Novigrad,
    Хърватия
    продадена
    Къща с голяма градина и изглед към морето в Новиград Предлаганата оферта се отнася за изключителна къща, разположена в живописния Новиград, характеризираща се с впечатляваща морска...
  • Dwa w pełni umeblowane domy z pięknym widokiem na morze, Novigrad H Emporia Neketnine Zadar Novigrad

    Два напълно обзаведени къщи с красива морска гледка, Новиград

    Novigrad,
    Хърватия
    продадена
    Два напълно обзаведени къщи с прекрасна морска гледка в Новиград В Новиград ви очаква изключителна оферта, която съчетава комфорт с впечатляваща морска панорама. Предлагат се два...
  • Dwupoziomowy apartament w miejscowości Belafuža, Zadar F Zadar Belafuza Stan

    Двунивоен апартамент в град Белафужа, Задар

    Zadar,
    Хърватия
    продадена
    Елегантен апартамент в живописния квартал Белафужа Изключителна възможност за закупуване на двуетажен апартамент в атрактивна локация в Задар, Белафужа. Просторен и комфортен, заемащ втория етаж и...
  • Apartament 25 m od morza, całkowicie odnowiony, Turanj, 1 piętro A Turanj

    Апартамент на 25 м от морето, напълно обновен, Туранж, 1-ви етаж

    Sveti Filip i Jakov,
    Хърватия
    продадена
    Модерен апартамент на 25 м от морето в живописния Туранж За продажба отличен апартамент, разположен в Туранж, само на 25 метра от очарователния плаж. Обектът, който...

Обади се

Пиши

Обратно

Начало